Agrandir la maison tout en restaurant la cuisine

01. Introduction
Ces clients ont fait appel à moi car ils souhaitaient agrandir leur maison et restaurer leur cuisine. Ils souhaitaient créer une extension dans leur jardin sur la partie arrière de leur maison afin de bénéficier d'une pièce en plus, tournée vers le jardin. Dans le même temps, ils souhaitaient réfectionner leur cuisine actuelle.
02. Problématique
Une nouvelle extension ? Comment l'intégrer au bâtiment existant ?
Concernant l'extension, il était essentiel de trouver une solution qui crée un dialogue respectueux et visuellement équilibré entre cette extension et la maison en pierre existante.
Pour ce qui est de la réfection de la cuisine, cette pièce sert de lieu de passage obligé pour accéder aux pièces de l'étage. L'enjeu était double : concevoir un maximum de rangements fonctionnels sans jamais entraver la fluidité des accès.
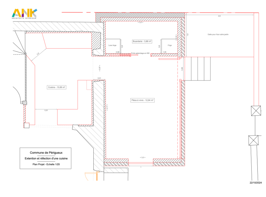
03. Le projet
Pour l'extension, j'ai opté pour une construction dont le sous-bassement est en béton, offrant une base solide, tandis que la partie supérieure repose sur une ossature bois pour alléger l'ensemble de la structure.
Comme l'arrière de la maison est un pignon, nous avons proposé une toiture à une pente. Ce choix était simple et efficace. Le positionnement des ouvertures a été dicté par l'orientation et le voisinage, garantissant un apport lumineux optimal tout en préservant l'intimité. Enfin, pour asseoir la belle hauteur de cette nouvelle construction, j'ai proposé un bardage en bois vertical.
L'accès au jardin fut conservé avec simplicité, le budget, nous a contraint à faire de nombreux choix.
Pour concilier le passage et le besoin de rangement, nous avons ciblé le mur principal, celui qui agit comme un « couloir ». L'idée fut de le recouvrir entièrement de placards faible profondeur, du sol au plafond. Ainsi on connecte visuellement la transition entre les pièces et on accentue l'impression de hauteur sous plafond tout en offrant un volume de rangement conséquent.
Pour le reste de l'aménagement, j'avais proposé d'utiliser une niche dans un mur pour y intégrer le four, mais cette idée n'a pas été retenue. Nous sommes restés sur une intégration plus classique mais tout autant ingénieuse, avec un emboîtement de meubles, pour ne perdre aucun centimètre.


04. Le déroulement des travaux.
La phase d'étude fut longue. C'est toujours le cas lorsque l'on construit, car qui dit nouvelle construction, dit étude de sol obligatoire, dépôt d'une déclaration en mairie et calcul de l'ingénieur des descentes de charges afin de valider la bonne conception du bâti.
Les travaux se sont bien déroulés mais ont demandé un certaine organisation. En effet, mes clients habitent dans une rue étroite et de surcroît aucun accès au chantier n'était possible en véhicule. Concrètement, un passage d'accès de 1,2 m était disponible entre la maison et la clôture du voisin.
Nous avons délibérément commencé les travaux par l'extérieur, et nous avons reporté la démolition intérieure au dernier moment. Cette approche a permis de laisser l'ancienne cuisine fonctionnelle, le plus longtemps possible.
Ils ont choisi de faire eux même leurs peintures, et nous on demandé de monter tout de même la cuisine avant leur peinture ce que nous avons fait.
05. Le rendu final
Le résultat est assez surprenant, surtout pour la cuisine. Bien que l'espace soit resté le même, l'aménagement ciblé a créé une illusion d'agrandissement. La pièce semble avoir gagné de nombreux mètres carrés, simplement parce qu'elle est désormais beaucoup moins encombrée et surtout parfaitement optimisée en termes de rangements et de flux de circulation.
Pour l'extension, la construction s'intègre parfaitement dans le paysage, et mes clients bénéficient d'une très belle lumière pour déjeuner face à leur jardin.
Artisans sur ce projet :
- ET Elec : électricité
- SAS Bouteaud : menuiseries extérieures et cuisine
- Mathieu et Cie : carrelage
- Dias MP Concept : plâtrerie
- DPC24 : plomberie chauffage
- Maçonnerie : ET Guy
- Ossature bois, charpente et couverture : SAS Tauby
- Akpinar : démolition
- ID Bâtiment : bureau d'étude béton
- Batitech : relevé 3D
- Optisol : Etude de sol
- Exclusiv électroménager : fourniture électro ménager
Crédits Photos : Émilie Soulard - Photographe