Un appartement assaini et remis à neuf

01. Introduction
Ce client a fait appel à moi pour une mission délicate : la remise en état d'un appartement locatif suite au départ de son ancien occupant. Ayant déjà travaillé plusieurs fois dans cet immeuble, et ayant récemment rénové l'appartement du dessous selon une organisation similaire, le projet semblait simple sur le papier.
02. Problématique
Comment assainir un appartement dans un état lamentable ?
C'était sans compter l'état lamentable dans lequel l'appartement a été récupéré. Le plus grand défi était loin d'être esthétique : il fallait d'abord assainir complètement les lieux. J'ai immédiatement conseillé aux clients de faire appel à des professionnels pour un traitement complet contre l'urine et les puces. L'objectif était de rendre l'appartement habitable et sain avant d'entamer la moindre rénovation.
03. Le projet
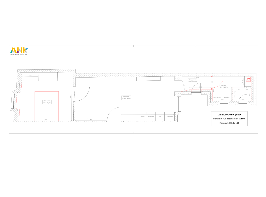
Pour l'agencement, j'ai repris la solution fonctionnelle de l'appartement du RDC : une salle d'eau en couloir qui intègre le WC, un espace pour la machine à laver et une douche.
Contrairement à celui du RDC il m'a fallu penser le reste de l'appartement. J'ai donc proposé à mes clients d'abattre une cloison pour donner une pièce à vivre plus spacieuse et adosser la cuisine contre le mur qui donne sur le palier afin de ne pas toucher à la cheminée existante et qu'ils souhaitaient conserver pour l'atout charme du lieu.


04. Le déroulement des travaux.
Le chantier a été divisé en deux phases distinctes : une première phase d'assainissement indispensable, suivie des travaux d'aménagement. Tout s'est déroulé comme prévu et sans imprévu majeur, ce qui a permis de livrer le projet dans les temps. La satisfaction a été double pour mes clients, car l'appartement a été loué très rapidement.
05. Le rendu final
Le résultat est tout simplement spectaculaire, surtout si l'on se rappelle d'où nous sommes partis. L'appartement est désormais un espace hyper fonctionnel et accueillant. Les couleurs sobres créent un sentiment de clarté et de sérénité, offrant au futur locataire une toile vierge qu'il pourra personnaliser à son goût.
Artisans sur ce projet :
- Traitement parasitaire : Liogier
- Démolition : Akpinar
- Menuiseries extérieures : SAS Bouteaud
- Electricité : Domo 24
- Plomberie : DPC24
- Plâtrerie / Peinture / Sol : SAS Dias MP Concept
Crédits Photos : Émilie Soulard - Photographe